Oak + Light on the Sound — Kitchen + Bath Remodel

Vashon Island, WA

Custom two-tone cabinetry and oversized island with commanding Puget Sound views.

Kitchen

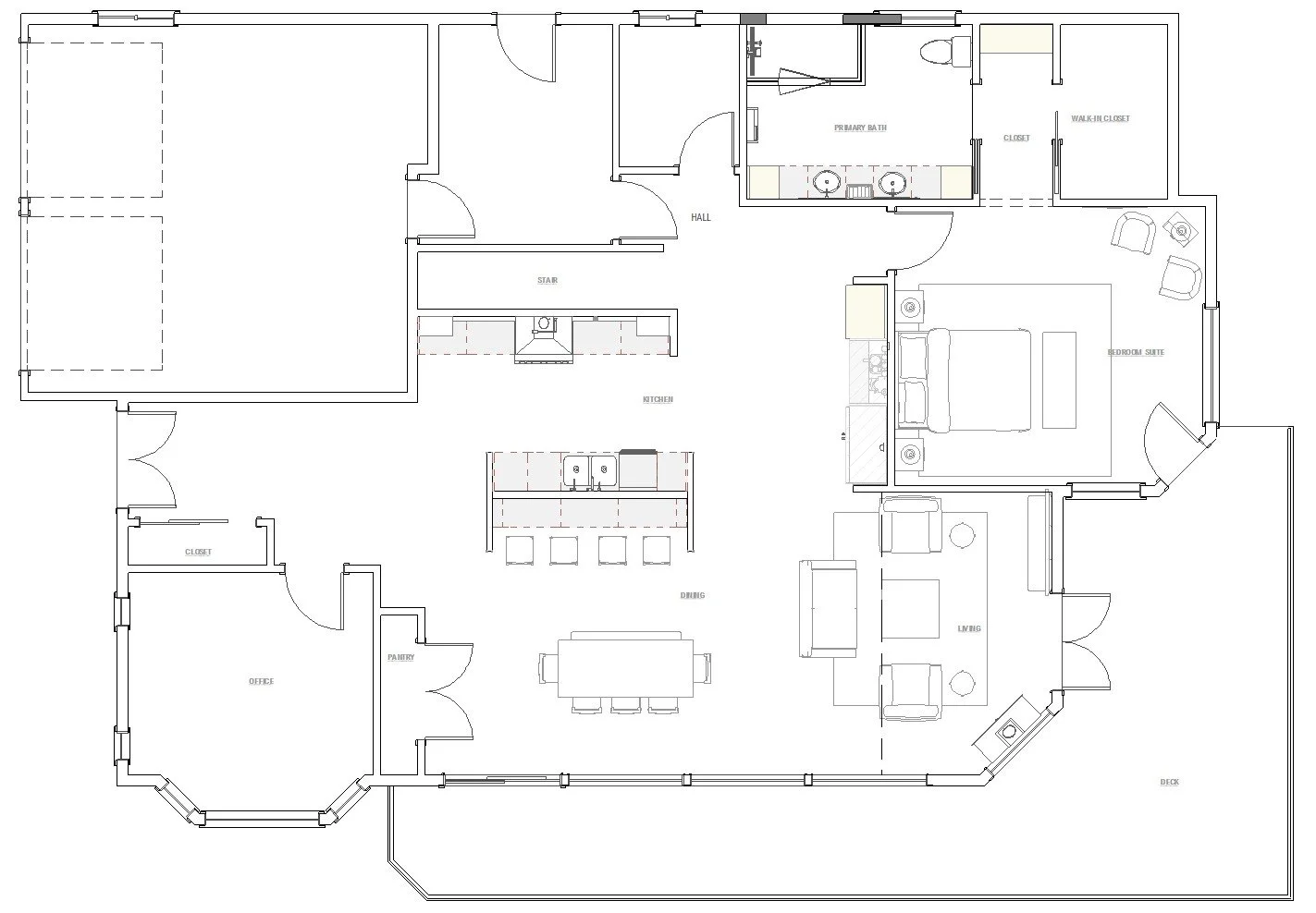
This late-1980s home had something most homes don't — a sweeping panel of windows framing the Puget Sound. But the floor plan made it nearly impossible to appreciate. Guests entering the front door were stopped immediately by a large wall, funneled into an awkward narrow hall, and had to navigate around a corner just to reach the kitchen. The kitchen itself was wrapped in a wide C-shape of walls, closed off from the living area and the view beyond. A small den with glass French doors sat between the kitchen and an undersized primary bedroom. The dining room, tucked behind its own wall near the entry, went largely unused — and with both homeowners working from home, the layout simply didn't support their lives.

These clients live and cook intentionally. They bake gluten-free sourdough from scratch, can their own fruits and vegetables, make their own broths, and treat the kitchen as the true heart of the home. The existing layout made none of that possible — cramped, closed off, and completely disconnected from the view.

The redesign started with the view and worked outward from there. Removing the entry wall and the enclosing kitchen walls unified the entire main level into one expansive, light-filled space — kitchen, dining, and living area connected and open to the Sound. The oversized island became the anchor of the home, with room enough for serious prep work, baking, and the organized chaos of a household that makes everything from scratch. A pot filler over the range isn't a luxury here — it's a necessity. The former den was absorbed into a significantly enlarged primary suite. The underused dining room became a stunning private office with unobstructed water views.

Primary Bathroom

Custom, quartersawn white oak cabinetry, hand-made tile backsplash, and matte black hardware

The primary bath got an equally intentional overhaul. The corner jetted tub — a hallmark of late-80s design — came out. So did the open vanities exposed directly to the carpeted bedroom. In their place: a warm, spa-like bath with oak cabinetry, vertical glazed tile, a frameless glass shower enclosure, and heated floors. Those floors, incidentally, now serve double duty — warm enough that she uses them to proof her sourdough starter.

The result is a home that finally lives up to its setting — and its people.

Hand-made vertical glazed tile, frameless glass shower enclosure, and towel warmer

The Approach

  • Removed entry wall to open sightlines from the front door through to the Puget Sound

  • Demolished C-shaped kitchen walls to create open-plan kitchen, dining, and living area

  • Designed oversized island as the functional and visual centerpiece of the main level

  • Converted dining room to a private, view-facing home office

  • Expanded primary suite by absorbing adjacent den; created single private entry

  • Designed two-tone kitchen with painted slate cabinetry, natural oak island and refrigerator nook

  • Integrated panel-ready Sub-Zero refrigerator into custom built-in coffee and storage zone

  • Removed corner jetted tub and open vanities; fully redesigned primary bath

  • Designed primary bath with custom oak cabinetry, Fireclay Tile, frameless glass shower, and heated floors


Remodeled floor plan — open kitchen, expanded primary suite, and new private office with water views

Remodeled floor plan showing open-plan kitchen, expanded primary suite, and converted home office with Puget Sound views

Original floor plan showing the enclosed kitchen, disconnected dining room, and undersized primary suite